Inicio
Proyectos
Contacto
HB + DV
Inicio
Proyectos
Contacto
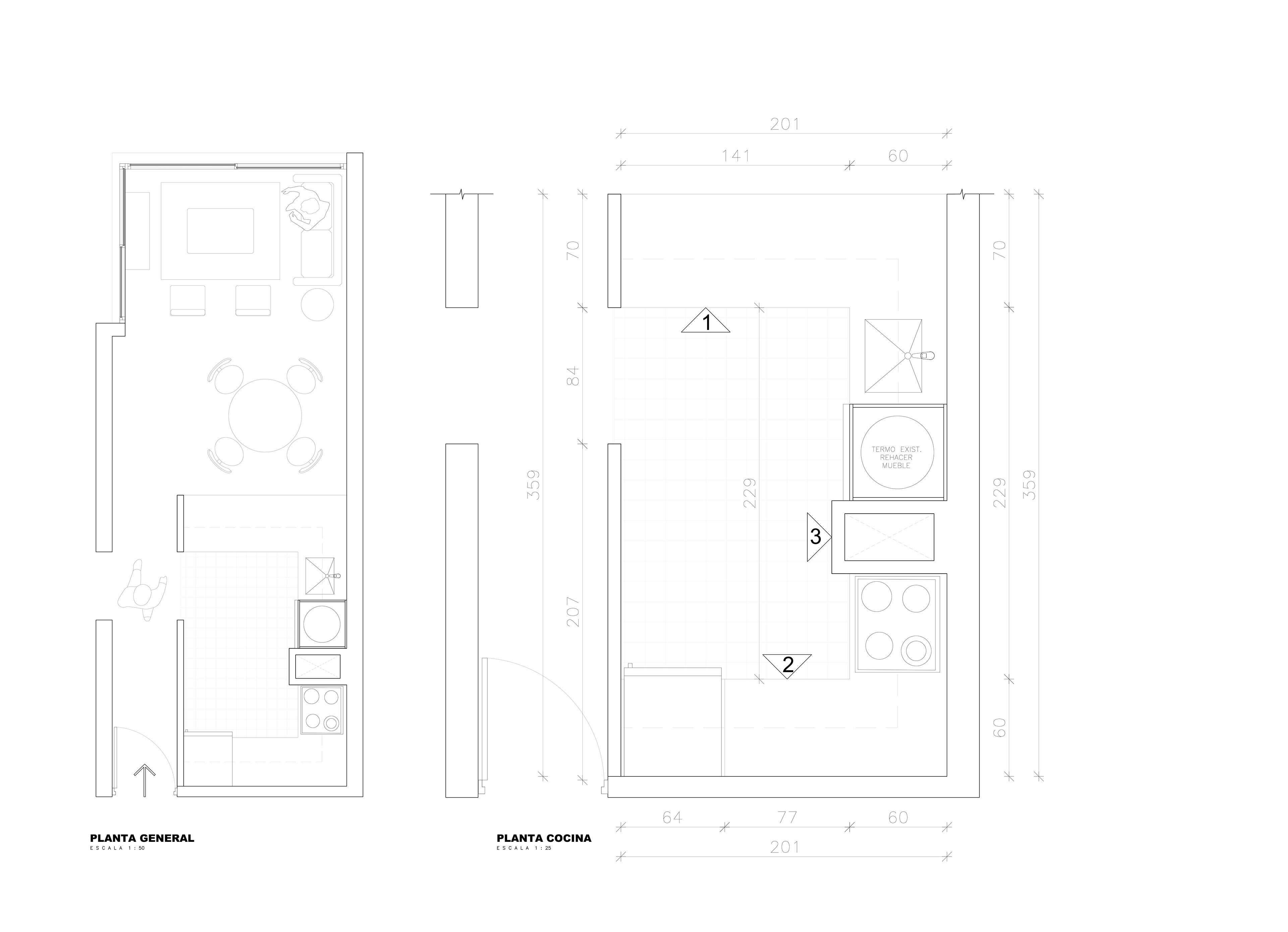
Remodelación Cocina / Augusto Leguía, Santiago de Chile
↑
Volver al inicio