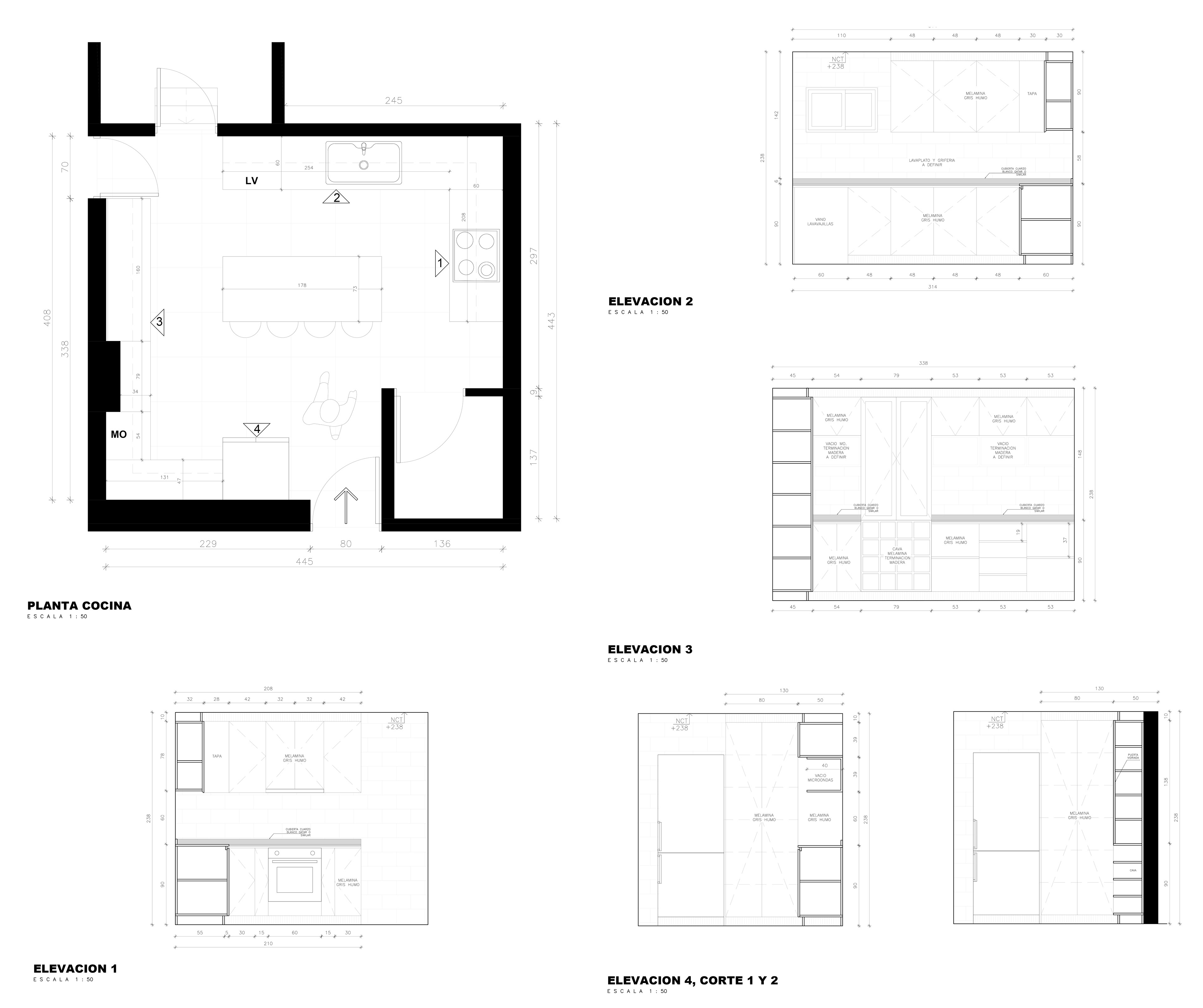
Propuesta de cocina para un departamento de 145 m2 en Santiago de Chile. 
El cliente solicitó dos propuestas considerando la demolición de un muro divisorio y sumando el cuarto de servicio al espacio de la cocina, el otro mantiene la distribución original de la cocina. 
La paleta de colores elegida fue neutra con detalles en madera en detalles específicos para maximizar la luz en la habitación cerrada que originalmente carecía de iluminación natural.
Volver al inicio